上一篇 下一篇 分享链接 返回 返回顶部

傲途电梯主机尺寸详解:如何选择合适的电梯主机尺寸?

发布人:烟火云官方客服 发布时间:2025-11-18 04:50 阅读量:185
Yanhuo IDC

傲途电梯主机尺寸详解

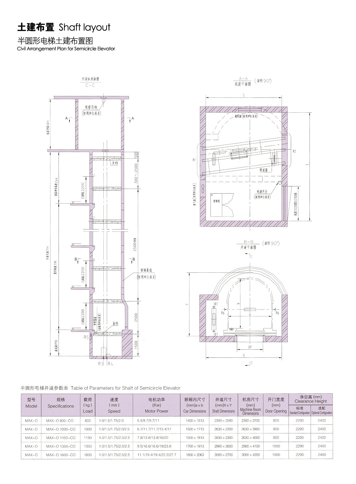
傲途电梯作为市场上知名的电梯品牌,其主机尺寸是许多消费者关注的焦点。本文将详细介绍傲途电梯主机的尺寸信息,以便大家更好地了解该品牌电梯的特点。

傲途电梯主机尺寸是多少

一、傲途电梯主机概述

傲途电梯主机是该品牌电梯的核心部件,具有高效、稳定、安全等特点。其设计先进,技术成熟,能够满足不同楼宇的需求。

傲途电梯主机尺寸是多少

二、主机尺寸介绍

傲途电梯主机的尺寸因型号不同而有所差异。一般来说,其尺寸范围涵盖了多种规格,以适应不同楼宇的电梯井道尺寸。具体的尺寸数据,建议您查阅傲途电梯的官方网站或产品手册,以获取最准确的信息。

傲途电梯主机尺寸是多少

三、影响主机尺寸的因素

傲途电梯主机的尺寸主要受到以下几个因素的影响:

  1. 电梯额定载重量:载重量越大,主机尺寸相应增大。
  2. 电梯运行速度:高速电梯需要更大尺寸的主机以保证稳定运行。
  3. 电梯井道尺寸:井道尺寸决定了主机尺寸的上下限。

四、选购建议

在选购傲途电梯时,请务必根据您的实际需求选择合适的主机尺寸。建议您与专业的电梯销售人员或工程师进行沟通,以确保选购到最适合您楼宇的电梯。

五、总结

傲途电梯主机的尺寸因型号和配置不同而有所差异。在选购时,请务必关注其尺寸信息,以确保选购到最适合您楼宇的电梯。同时,建议您与专业人员沟通,了解更多关于傲途电梯的信息,以便做出明智的决策。希望本文能对您了解傲途电梯主机尺寸有所帮助。

高速稳定云服务器9.9元起
目录结构
全文
QQ通知群 QQ通知群
微信公众号 微信公众号
电子邮箱: service@yanhuoidc.com